Жилой дом
Крем
геометрическая чистота.
до мельчайших деталей.
о доме
Архитектура, которая вдохновляет. Дом сочетает в себе современную элегантность и функциональный дизайн
-
Адрес
Белокуриха, ул. Загородная 23
-
Площадь территории
1505 кв.
-
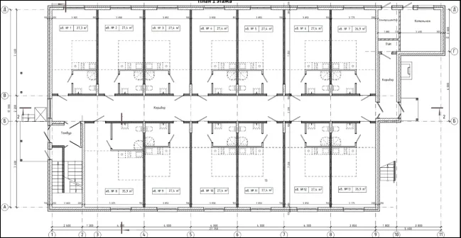
Количество помещений
26
-
Количество этажей
2
-
Сдача объекта
II квартал 2025
Интерьеры
Комфортная жизнь с видом на природу, от которого захватывает дух
Юридическая информация
-
Полное наименование организации:
ООО Специализированный застройщик «Регионэнергоснаб»
-
Юридический адрес:
656037, Алтайский Край, г. Барнаул, пр-кт Калинина, д. 116б, помещ. 4
-
ИНН/КПП:
2222850524/222401001
-
ОГРН:
1162225087958
-
Директор:
Шмаков Александр Игоревич